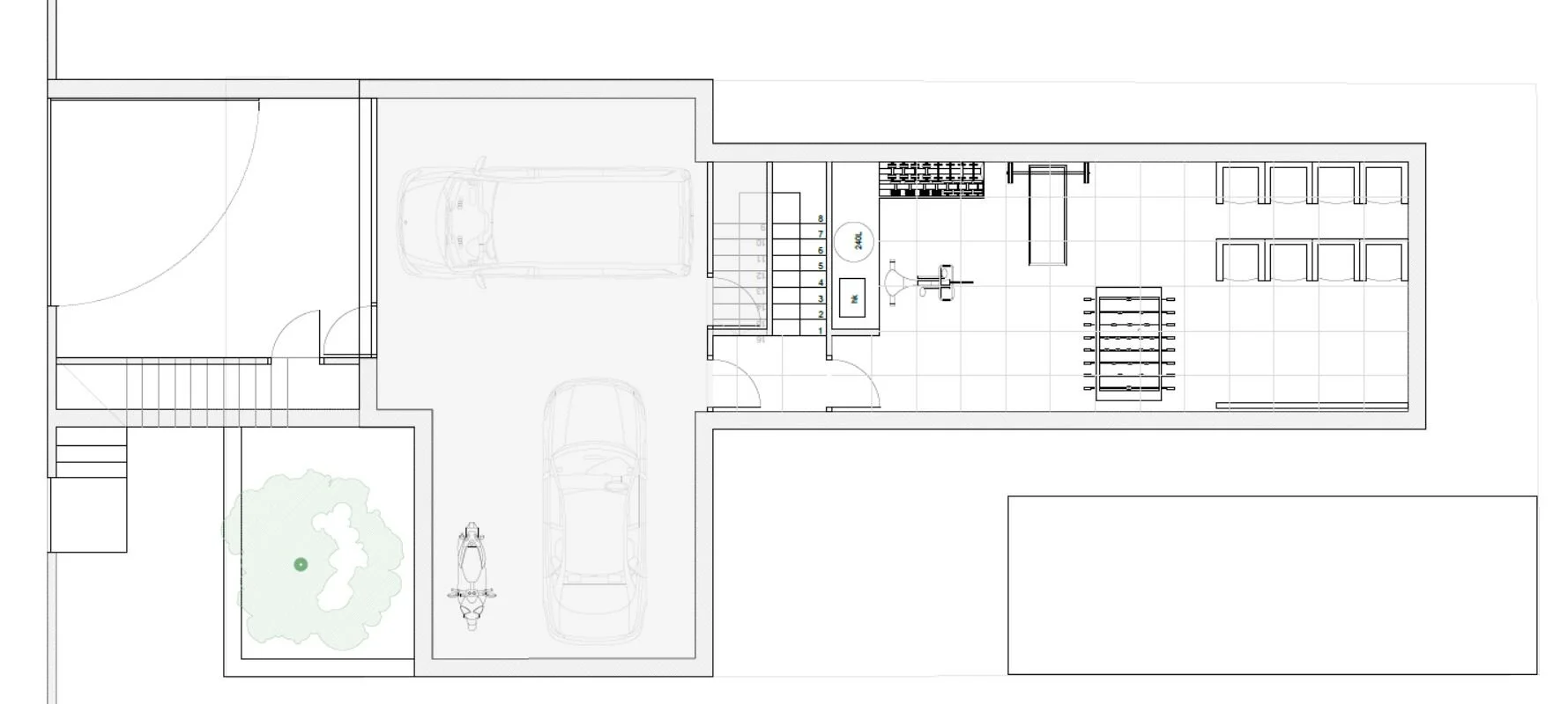
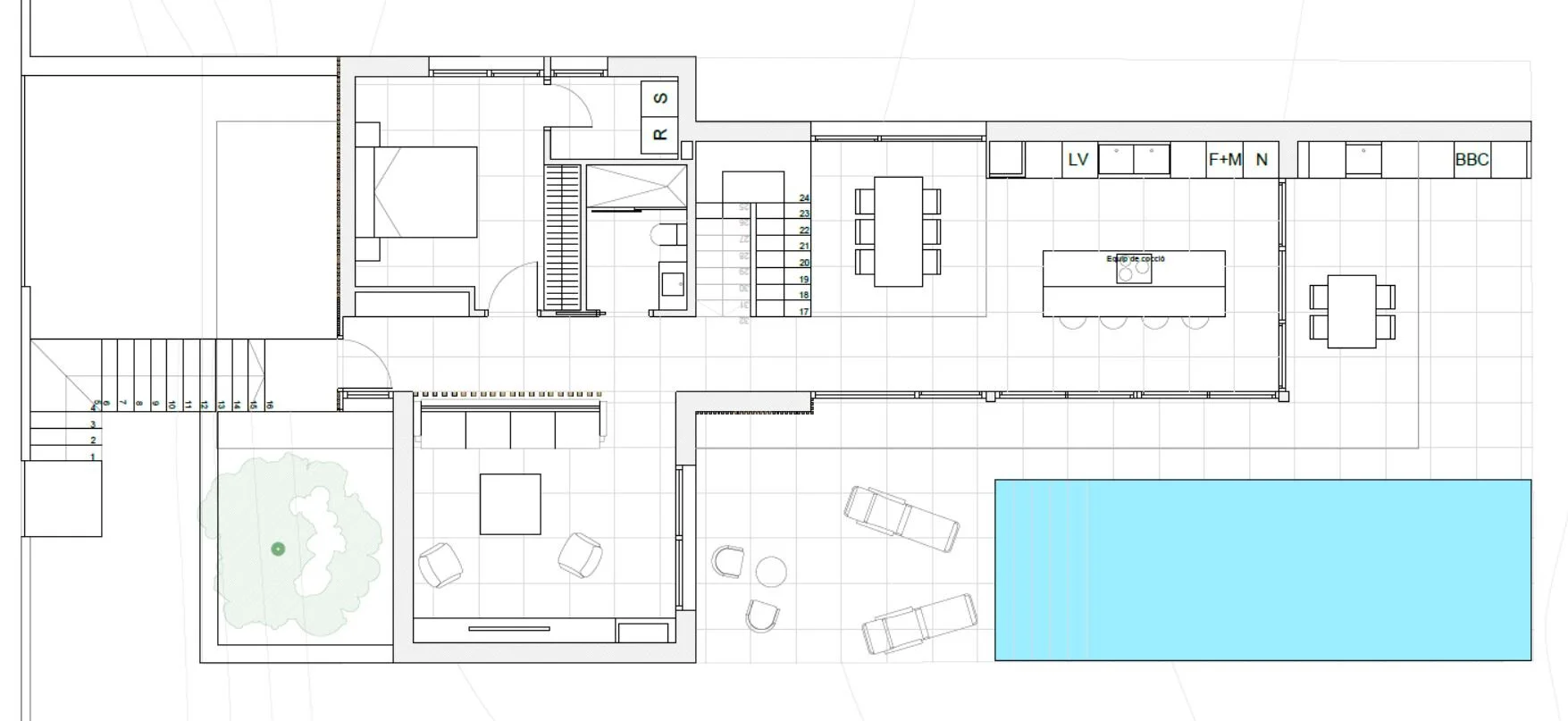
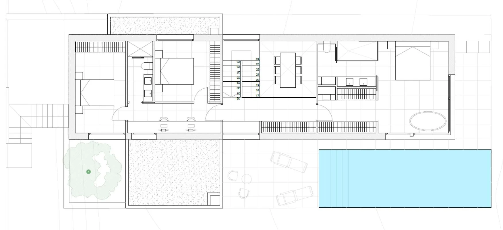
Proyecto de vivienda unifamiliar en Sant Feliu de Guíxols - Urbanització Mas Trempat (Costa Brava, Girona)

Anterior
Anterior

Villa Puig - Sant Feliu de Guíxols

Siguiente
Siguiente

Villa Puig - Santa Cristina d'Aro